Bebauungsplan Nr. I / 61 "Leipziger Straße/Ottilienstraße", Gemarkung Hessisch Lichtenau - Aufhebung des Aufstellungsbeschlusses und Vorhabenbezogener Bebauungsplan Nr. I / 63 "Verbrauchermarkt Leipziger Straße / Ottilienstraße" und 58. Änderung des Flächennutzungsplans, Gemarkung Hessisch Lichtenau - Aufstellungsbeschluss
Gemäß § 2 (1) Baugesetzbuch (BauGB) i. V. m. § 1 (8) BauGB i.d.F. der Bekanntmachung vom 03.11.2017 (BGBl. I S. 3634), zuletzt geändert durch Artikel 5 des Gesetzes vom 12. August 2025 (BGBl. 2025 I Nr. 189), wird hiermit bekannt gemacht, dass die Stadtverordnetenversammlung der Stadt Hessisch Lichtenau am 3. Juli 2025 folgende Beschlüsse gefasst hat:
Aufhebungsbeschluss
Der Beschluss der Stadtverordnetenversammlung vom 29. Juni 2023 (VL Stavo 23/2023), zur Aufstellung des Bebauungsplans Nr. I/61 "Leipziger Straße/Ottilienstraße", Gemarkung Hessisch Lichtenau im vereinfachten Verfahren gem. § 13a BauGB als Bebauungsplan der Innenentwicklung, wird aufgehoben. Aufgrund von Ergebnissen aus fachgutachterlichen Untersuchungen kann die Aufstellung des Bebauungsplans nicht im beschleunigten Verfahren erfolgen.
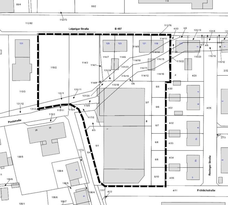
Der Geltungsbereich des eingestellten Bebauungsplanverfahrens Nr. I/61 "Leipziger Straße/Ottilienstraße", Gemarkung Hessisch Lichtenau umfasst das Flurstück 6/11 i. T., Flur 12 mit einer Größe von ca. 8.300 m² und ist aus der nachfolgenden Abbildung ersichtlich:

Aufstellungsbeschluss
Für die in den beiliegenden Planausschnitten dargestellten Plangeltungsbereiche wird die Aufstellung des vorhabenbezogenen Bebauungsplans Nr. I/63 „Verbrauchermarkt Leipziger Straße/Ottilienstraße", Gemarkung Hessisch Lichtenau und die Durchführung der 58. Änderung des Flächennutzungsplans im Parallelverfahren gem. § 2 (1) BauGB beschlossen. Das Verfahren wird gemäß §§ 3 und 4 BauGB im zweistufigen Regelverfahren inkl. Umweltbericht gemäß § 2 (4) BauGB durchgeführt. Ziel und Zweck der Planung ist die geordnete städtebauliche Entwicklung, die Sicherung und Beibehaltung der wohnortnahen Versorgung der ortsansässigen Bevölkerung sowie die Schaffung der planungsrechtlichen Voraussetzung zum Neubau des REWE-Marktes und dessen Verkaufsflächenerhöhung unter besonderer Berücksichtigung der örtlichen Gegebenheiten.
Der Geltungsbereich des vorhabenbezogenen Bebauungsplans Nr. I/63 „Verbrauchermarkt Leipziger Straße/Ottilienstraße", Gemarkung Hessisch Lichtenau umfasst die Flurstück 6/11 und 117/3 sowie i. T. 115/7 und i. T. 117/ 7, alle Flur 12 mit einer gesamten Flächengröße von etwa 9.150 m². Der Änderungsbereich der 58. Änderung des Flächennutzungsplans entspricht nahezu dem Planbereich des Bebauungsplans. Er umfasst das Flurstück 6/11 i. T., Flur 12 und weist eine Größe von ca. 8.300 m² auf. Die räumliche Lage der Geltungsbereiche ist aus den nachfolgenden Abbildungen ersichtlich:



